1989-2026 © Oglasnik d.o.o. Sva prava pridržana. Sadržaj ove web stranice isključiva je odgovornost tvrtke Oglasnik d.o.o.
Unaprijeđenje internetske stranice sufinancirala je Europska unija iz Kohezijskog fonda. Detalji projekta
1989-2026 © Oglasnik d.o.o. Sva prava pridržana. Sadržaj ove web stranice isključiva je odgovornost tvrtke Oglasnik d.o.o.
Unaprijeđenje internetske stranice sufinancirala je Europska unija iz Kohezijskog fonda. Detalji projekta
Aktivan od: 18.12.2025.
Oglas pregledan: 88 puta
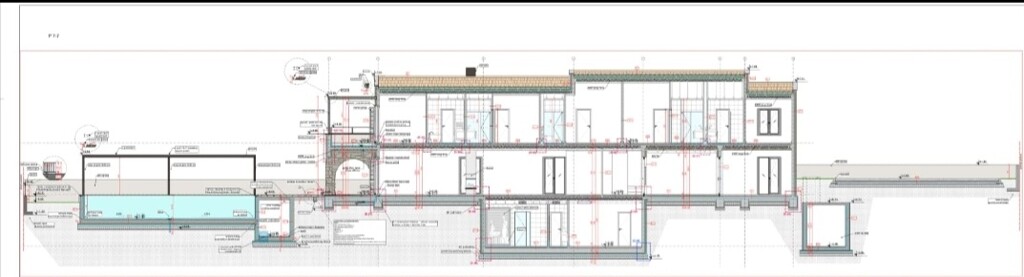
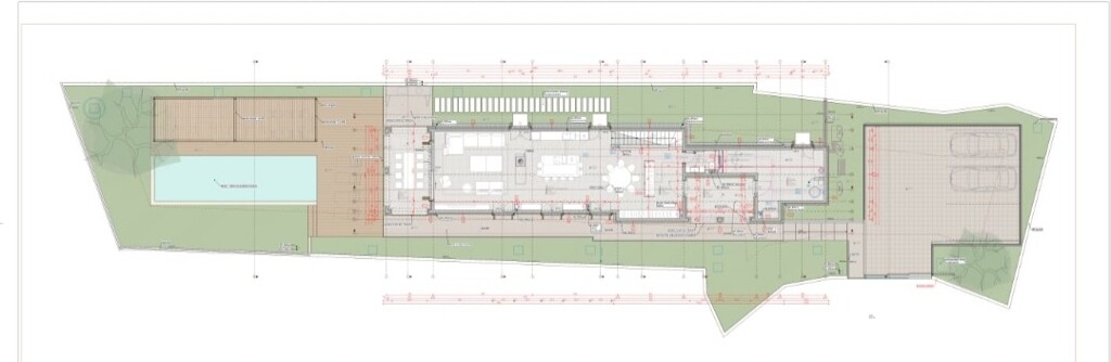
ZEMLJIŠTE S PRAVOMOĆNOM DOZVOLOM ZA GRADNJU LUKSUZNE VILE
360.000 €
Hrvatska, Istarska, Medulin, Premantura
Otvori u kartama
Moguća dostava
Osnovni podaci
Površina
840 m²
Šifra oglasa: 4783155
Aktivan od: 18.12.2025.
Oglas pregledan: 88 puta
Hrvatska, Istarska, Medulin, Premantura
Otvori u kartama
Moguća dostava